
Komfortable 2-Zimmerwohnung
38477 Jembke, Dachgeschosswohnung zur Miete
Kontaktdaten
-
Tel:
-
Fax05361 46499920
Objektdaten
-
Objekt ID5542
-
Objekttypen
-
Adresse38477 Jembke
-
Wohnfläche ca.39 m²
-
Zimmer2
-
Schlafzimmer1
-
Badezimmer1
-
BefeuerungLuftwärmepumpe, Zentralheizung
-
Baujahr2022
-
Zustandneuwertig
-
Verfügbar abnach Vereinbarung
-
Nebenkosten165 EUR
-
Kaution1.638 EUR
-
Nettokaltmiete546 EUR
Ausstattung / Merkmale
- Einbauküche
- Haustiere erlaubt
- Keller
- Personenaufzug
- Seniorengerecht
Energieausweis
-
EnergieausweistypBedarfsausweis
-
Gültig bis22.11.2032
-
GebäudeartWohngebäude
-
Baujahr lt. Energieausweis2022
-
Wesentlicher EnergieträgerLuft/Wasser Wärmepumpe
-
Endenergiebedarf12,10 kWh/(m²·a)
12,10 kWh/(m²·a)
Objektbeschreibung
Beschreibung
Die Wohnanlage in Massivbauweise wurde vor circa zwei Jahren vollständig neu errichtet. Für eine ausgezeichnete Energieeffizienz sorgt die eingebaute Luft-Wärmepumpe zusammen mit einer Photovoltaikanlage. Die großen weißen Kunststofffenster verfügen über eine Dreifachverglasung, die neben einer hohen Tageslichteinwirkung auch eine angemessene Schalldämmung gewährleistet. Zusätzlichen Wohnkomfort bieten vorhandenen Außenrolläden. Die installierte Be- und Entlüftungsanlage stellt den regelmäßigen Luftaustausch in den Räumlichkeiten sicher. Sämtliche Eingänge und Türen sind breit und ebenerdig. Zudem lassen sich die Eingänge elektrisch öffnen und schließen. Ein Fahrstuhl ermöglicht den Zugang zu allen Etagen.
Zu jeder Wohnung gehört ein PKW-Stellplatz und ein Kellerraum. Gegen Aufpreis kann ein Carport-Stellplatz angemietet werden. Im Haus Nr. 2 befindet sich ein großer Clubraum mit separaten Toiletten und einer Küche. Hier findet sich genügend Platz für Familienfeiern oder Spieleabende. Die angrenzende Außenterrasse lädt ebenfalls zum geselligen Beisammensitzen ein.
Ausstattung
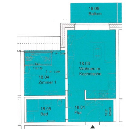
Diese gemütliche 2-Zimmerwohnung befindet sich im Dachgeschoss. Über die Diele erreichen Sie das Badezimmer, welches mit einer ebenerdigen Dusche versehen ist. Die offene Wohn-Essküche verfügt bereits über eine moderne Einbauküche. Angrenzend an den Wohnbereich befindet sich der Balkon mit Blick ins Grüne. Das gemütliche Schlafzimmer erreichen Sie direkt über das Wohnzimmer. Alle Wände in der Wohnung sind weiß gestrichen und verfügen über weiße Innentüren. Der Fußboden ist mit einem pflegeleichten Vinylboden in Holzoptik ausgelegt. In den kalten Monaten sorgt die integrierte Fußbodenheizung für angenehme Wärme.
Sonstige Informationen
Baujahr: 2022
Energiekennwert: 12,1 kWh/(m²*a)
Befeuerung/Energieträger: Wärmepumpe
Energieausweistyp: Bedarfsausweis
Heizungsart: Wärmepumpe
Energieeffizienzklasse: A+
Lage
Jembke liegt zwischen den Naturparks Südheide und Drömling an der Kleinen Aller. Die Gemeinde gehört der Samtgemeinde Boldecker Land an, die ihren Verwaltungssitz in Weyhausen hat.
Verschiedene Einkaufsmöglichkeiten, eine Apotheke sowie ein Friseursalon sind fußläufig in etwa 10 min zu erreichen.
Die ungefähre Position der Immobilie auf Google Maps ansehen (Link auf externe Website)







